22.10.2025

Аскетизм, натуральность, медитативность: интерьер как представление об идеальном доме

Эта квартира стала для владелицы идеальным местом как для уединенного отдыха, так и для встреч с близкими.

Площадь: 120 кв. м

История преображения апартаментов в престижном жилом комплексе «Сады Пекина» началась в конце 2021 года. Когда квартира находилась уже на завершающем этапе строительных работ, владелица осознала, что пространство не соответствует ее представлениям об идеальном доме. То, что выглядело удачным на чертежах, в реальности требовало совершенно иного подхода. В поисках нового решения она обратилась в студию ARTIMITRO.

Аскетизм, натуральность, медитативность: интерьер как представление об идеальном доме

Гостиная. Темное пятно утопленного в нишу ТВ дополняет черный металлический диск со светильником на магните от From Lighting и напольный подиум с хранением. Кресло и столик — Henge. Непальский ковер с шелком, Jerome Botanic. Гипсовый барельеф изготовлен на заказ компанией Kimart. Вентиляционные решетки, Invisiline. Мягкая зона организована диваном и столиком от Baxter. За такую форму дивана дизайнерам пришлось побороться: эта модель редко представлена в шоурумах, а заказчица сомневалась в ее удобстве. Однако выбор оказался верным: диван превзошел ожидания своим комфортом благодаря продуманной глубине посадки. Картина, автор Ли Шевалье, Booroom Gallery.

Аскетизм, натуральность, медитативность: интерьер как представление об идеальном доме

Проход вдоль окон из кухни-гостиной в приватный блок (пространство спальни, гардеробной и санузла) и кабинет выделен камнем и функциональным опуском потолка с линейными черными треками вдоль всей линии окон. Стена и оконные откосы отделаны деревянными панелями. Чтобы достичь максимальной воздушности в гостиной, авторы не стали привязывать новые стены к несущим бетонным колоннам: одну из них обнажили полностью возле дивана. Еще две колонны выходят из стен возле входной двери и в спальне.

Изучив объект, команда студии предложила радикальный подход: полный редизайн для раскрытия потенциала пространства с помощью выверенных архитектурных приемов. «В нашей работе мы всегда ставим перед собой задачу гармонизировать пространство. Для нас важно использовать исходный потенциал объекта по максимуму, усилить его: разглядеть объем, который станет доминантой; материал, который можно сохранить; конструкцию, которая задаст ритм, — объясняет руководитель проекта Артур Митрошкин. — Основные визуальные инструменты, которые мы используем: пропорция, проекция, объем, свет, контраст. И результатом такой комбинации всегда становится интерьер, в котором человек чувствует себя больше, в котором хочется быть лучше». Неуди­вительно, что при таком глубоком подходе к работе заказчица прониклась доверием к профессионалам и согласилась начать проект с чистого листа.

Аскетизм, натуральность, медитативность: интерьер как представление об идеальном доме

Зона кухни — минимальная: для завтраков и аперитивов. Функциональный остров выполнен по чертежам авторов проекта. Полубарные стулья, Woak Design. Подвесной светильник, Baxter. Необходимую технику (Miele) разместили в колоннах, которые интегрированы в общую линию шкафов.

Авторы кардинально переосмыслили эргономику пространства: от расположения функциональных зон до высоты потолков и дверных проемов. Ключевым решением стала круговая планировка, которая визуально расширяет площадь, создает ощущение простора и устанавливает гармоничную взаимосвязь между зонами. В отличие от предыдущей концепции, вид на центральную часть интерьера — кухню-гостиную — теперь открывается сразу от входа, что усиливает впечатление воздушности. Сама входная дверь максимально интегрирована в дизайн: темная панель МДФ на ее внутренней стороне выполнена до потолка по принципу мачты и визуально воспринимается как элемент отделки стены. Другое выразительное решение — элегантный проход вдоль окон, соединяющий гостиную с приватным блоком и кабинетом.

Аскетизм, натуральность, медитативность: интерьер как представление об идеальном доме

На каменной стене над подвесной тумбой с раковиной дизайнеры установили гипсовый барельеф длиной 5,5 метра, вручную выполненный специалистами студии Леонида Кима. Панно идеально вписалось в концепцию интерьера, ведь его сюжет вдохновлен китайскими гравюрами. Высокие шкафы кухни продолжаются системой хранения приватного блока. Гардероб разделен на функциональные зоны: закрытое хранение за глухими фасадами, стеклянные витрины с комодами, открытые стойки для быстрого доступа и полки для обуви. Из гардероба мимо санузла можно попасть в спальню, а затем выйти в гостиную с другой стороны, вдоль окна.

Аскетизм, натуральность, медитативность: интерьер как представление об идеальном доме

Фрагмент кабинета. Вороненый стеллаж был разработан по авторским чертежам дизайнеров Artimitro и занимает всю стену напротив окна. Стеллаж включает закрытую деревянную секцию, но его основной объем сконструирован из стали. Вес стеллажа — около 800 кг. Как вспоминают авторы проекта, подъем объекта в апартаменты и его монтаж были непростыми. Диван, Living Divani. Столик, Cattelan Italia. Торшер, Luceplan. Ковер, Jerome Botanic. По техническим причинам проектные шаттерсы на окнах были заменены на деревянные жалюзи с широкими ламелями. Настроение от этого не пострадало, а, может быть, даже выиграло. Окна выходят на закатную сторону, и вечером по полу разливаются теплые лучи. Деревянные постаменты, Modenature.

Стилистически интерьер вдохновлен монументальностью сталинской архитектуры и азиатскими мотивами, которые отражены в названии жилого комплекса и отвечают эстетическим предпочтениям владелицы. В материалах и геометрии пространства прослеживаются аскетизм, натуральность и медитативность, вызывающие ассоциации с садом камней — это пространство действительно создано для того, чтобы замедлиться и обрести равновесие. «Вы даже не представляете, насколько среда влияет на наш образ мыслей, какой мощный это инструмент, как важно окружать себя правильными предметами, находиться в правильных пропорциях», — отмечает Артур Митрошкин.

Аскетизм, натуральность, медитативность: интерьер как представление об идеальном доме

Фрагмент спальни. Основа композиции — замшевая кровать Minotti. Слева от нее расположен столик Baxter в теплом металле, справа — композиция с закрытой тумбой и фарфоровыми подвесными светильниками Bocci. Несущая колонна из бетона играет роль настенного панно и добавляет интерьеру характера.

Аскетизм, натуральность, медитативность: интерьер как представление об идеальном доме

Вид на санузел. Парящая каменная консоль с раковиной и два двусторонних зеркала с подсветкой выполнены по чертежам авторов проекта. Пространство структурировано двумя стеклянными кабинами: тонированной полупрозрачной душевой и непрозрачным черным кубом для унитаза, обеспечивающим максимальную приватность. Смесители — Dornbracht, аксессуары и унитаз — Antonio Lupi, полотенцесушители — Cea. Зона санузла и гардероба отделена от зоны отдыха перегородкой из тонированного стекла, которую при необходимости можно закрыть. «Мы долго согласовывали текстиль, — вспоминают авторы. — В итоге мы установили портьеры из темной пальтовой шерсти, фактура которой напоминает шинель».

При этом проект отличается продуманной технологичностью — неотъемлемым эле­ментом современного жилья. «Нельзя забывать о том, что мир быстро развивается, и, помимо совершенства объемов, сегодня необходима технологичность, которая является залогом удобства, а также должен быть заложен потенциал для улучшения», — поясняет архитектор Маргарита Докторович. Рядом с входом расположена компактная сенсорная панель Control4 для управления светом, климатом, жалюзи и звуком. Эта система, дополненная специальным приложением для смартфона, работает вместе с минималистичными выключателями Ekinex. «Автоматизация — неотъемлемая часть современного проектирования, особенно когда речь идет о больших площадях», — подчеркивает Маргарита.

Аскетизм, натуральность, медитативность: интерьер как представление об идеальном доме

Гардероб для верхней одежды создан по авторским чертежам и расположен справа от входа за реечной перегородкой со стеклом от Rimadesio. В отделке преобладают темное дерево, черный металл и тонированное стекло. Строгость композиции смягчают паркет в виде французской елочки и теплая подсветка полок. Ванна из белого акрила, выполненная по индивидуальному заказу, элегантно встроена в нишу с отделкой вафельной плиткой под бетон от Cedit. По размеру ниши на потолке установлен лайтбокс. Интерьер дополнен смесителями Dornbracht, аксессуарами и унитазом Antonio Lupi. Помещение будет также использоваться хозяйкой для купания собаки.

Аскетизм, натуральность, медитативность: интерьер как представление об идеальном доме

Фрагмент гостевого санузла. Интерьер акцентирован тонированным зеркалом в пол и белой цилиндрической раковиной с напольным смесителем. Пространство дополняют высокие темные шкафы справа от раковины и за унитазом, оснащенные скрытыми отсеками для хранения бытовой химии и доступа к коммуникациям.

В результате команда ARTIMITRO создала не просто эстетически выверенное пространство, но настоящую среду для жизни, где каждый элемент работает на ощущение гармонии и комфорта. Проект демонстрирует, как правильно организованное пространство может влиять на качество жизни, настроение и мироощущение человека. В дизайне этих апартаментов удалось достичь баланса между монументальностью и уютом, технологичностью и эстетикой и создать место, где хозяйке действительно хочется жить и восстанавливать силы.

Аскетизм, натуральность, медитативность: интерьер как представление об идеальном доме

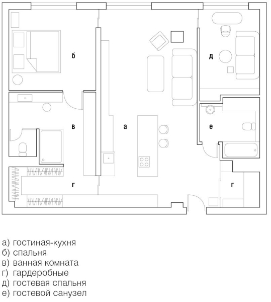
Планировка.

Добавить комментарий

Ваш адрес email не будет опубликован. Обязательные поля помечены *