21.10.2025

Лучше, чем модно: интерьер для семьи с тремя детьми

Заказчикам нравится жить в Замоскворечье, и, когда семья увеличилась, они купили в этом же доме две квартиры этажом выше, объединили их и получили интерьер своей мечты.

Площадь: 323 кв.м

Молодая семейная пара, у которой теперь уже трое детей — две дочери и сын, не в первый раз обращается к Ольге Кушнаревой-Леоне: до этого архитектор уже делала для них загородный дом и квартиру. «За десятилетие нашего общения все мы сильно изменились, — говорит автор проекта. — И мы, и наши заказчики «выросли», у нас сменились приоритеты, изменились вкусы. Мы как будто работали с новыми заказчиками, незнакомыми нам людьми. И особенно приятно, что у нас с хозяевами вновь сложилось замечательное взаимопонимание, и мы получили благодарность за проделанную работу».

Лучше, чем модно: интерьер для семьи с тремя детьми

На стенах гостиной — покрытие с нанесением настоящей слюды. Нейтральное по цвету, оно деликатно переливается при изменении освещения и участвует в создании мягкой, камерной атмосферы. За арочной раздвижной перегородкой — кухня-столовая. Тема арки — центральная тема этого интерьера. Столярные изделия по эскизам бюро Olga Kushnareva-Leone Architecture&Design, поставщик Charles. Cameron. Диван, Vanguard Furniture. Столик, Century Furniture. Ковер, Loloey.

Лучше, чем модно: интерьер для семьи с тремя детьми

Кухне-столовой отдано самое эффектное пространство квартиры — правильной формы, с большим окном. Стол из литого бетона — один из самых эффектных предметов мебели: бетон создает впечатляющий контраст с другими материалами — деревом, стеклом, натуральными тканями. Обеденный стол, Made goods. Стулья, Alga. Люстра, Arteriors Home.

Что касается стиля, то заказчики представляли себе не типичную старомосковскую квартиру, ассоциирующуюся со словом «Замоскворечье», а современную, легкую по ощущению, удобную и красивую, без лишнего декора и с использованием современных отделочных материалов: использовали, например, вместо мрамора керамогранит, а наряду с обоями — штукатурку. Предметы мебели, особенно для столовой и гостиной, подбирали дизайнерские, «с характером».

Лучше, чем модно: интерьер для семьи с тремя детьми

Большую часть кухни-столовой занимает кухня, выполненная из натурального дуба на заказ по проекту бюро Olga Kushnareva-Leone Architecture & Design (поставка Charles.Cameron). В линию кухонных шкафов деликатно интегрирована дверь из подсобной-гардеробной — через нее удобно заносить покупки. Барные стулья, Morelato Светильники, Heathfield.

Лучше, чем модно: интерьер для семьи с тремя детьми

Фрагмент столовой. Особый шарм помещению придает большое окно (в квартире установлены окна с подогревом). Ритм штор тонко рифмуется с ритмом подвесок люстры. Эту люстру, которая уже была у заказчиков, органично интегрировали в интерьер.

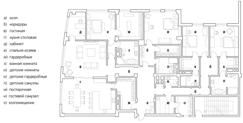
Прекрасные арочные проемы, которые во многом формируют атмосферу интерьера, появились в процессе проектирования, когда автор проекта решала вроде бы чисто функциональную задачу: как создать места уединения для каждого члена семьи. Вот что сама Ольга рассказывает об этом: «Две квартиры достаточно сложно объединялись — такая планировка у дома. Задача изолировать личные пространства обязывала устроить множество коридоров и тамбуров. Увязать их с лаконичным современным интерьером, требующим пространства и «воздуха», было непросто. В связи с этим родилась идея оформить переходы арочными проемами. Кроме того, мы тщательно продумали все фокус-точки из основных локаций в квартире: они оформлены нишами для произведений искусства».

Лучше, чем модно: интерьер для семьи с тремя детьми

Арочные проемы есть и в коридоре, объединяющем разные части квартиры. «В коридорах и холлах есть как закарнизная подсветка, так и точечные светильники в полу, чтобы подчеркнуть эффектные арки, — объясняет Ольга. — Мы хотели таким образом превратить утилитарные пространства в самые привлекательные». Пьедестал, банкетка, Uttermost.

Лучше, чем модно: интерьер для семьи с тремя детьми

Вид на коридор особенно эффектен, когда аркада подчеркнута включенной закарнизной подсветкой. У коридора есть еще одна роль — картинной галереи. На стенах — штукатурка нейтрального тона, а для отделки пола в коридорах использовали керамогранит с эффектом натурального песчаника. Люстры, Heathfild.

Родительский блок (спальня, гардеробная и ванная) имеет отдельный коридор и расположен в стороне от того крыла квартиры, где находятся детские, — ближе к гостиной. У гостиной в процессе проектирования наметился небольшой «аппендикс», который было решено превратить в кабинет хозяйки — и теперь это одно из самых красивых помещений в квартире. Ольга учла всё, включая системы хранения и постирочную, не забыла даже про домашнего питомца — морскую свинку, спроектировав для нее новый удобный домик.

Лучше, чем модно: интерьер для семьи с тремя детьми

Зона отдыха в гостиной. За приоткрытой дверью — кабинет. На окнах в гостиной — простые по форме, но эффектные шторы с акварельным рисунком «деграде»: их как будто слегка окунули в море. Вместе со стеновым покрытием цвета песка с блестящими частичками слюды такой текстиль навевает приятные воспоминания об отдыхе на море. Кресло, Vanguard Furniture. Столик (около кресла), Century Furniture. Столик (справа), бра, Arteriors Home.

Лучше, чем модно: интерьер для семьи с тремя детьми

В кабинете (за дверью гостиной) акцент сделан на покрытии стен: это тонкий слой деревянного шпона глубокого синего цвета, уложенного в разных направлениях. Работая на контрасте с цветом натурального дуба, из которого выполнена библиотека, этот прием отвлекает от небольших размеров помещения. Письменный стол, Manual Mode. Люстра, Handle Studio.

Лучше, чем модно: интерьер для семьи с тремя детьми

«Под родительскую спальню отведено особенно много места, — рассказывает автор проекта. — Это прежде всего личное пространство мамы с продуманным до мелочей интерьером, где приятно уединиться и отдохнуть». При каждой из спален, включая детские, — своя гардеробная. Кровать, Century Furniture. Банкетка, Uttermost. Прикроватные столы, Made goods. Люстра, Bella Figura.

Лучше, чем модно: интерьер для семьи с тремя детьми

Ванная комната хозяев. «В каждом из пяти санузлов — своя идея отделки, создающая индивидуальный характер помещения, — объясняет Ольга Кушнарева-Леоне. — Но нигде не использован натуральный мра­мор — заказчики особенно настаивали на отсутствии этого «серьезного» материала в их новых ин­терьерах». Так, в главном санузле стены отделаны крупноформатным керамогранитом под мрамор, а в детском сан­узле — керамической плиткой. Ванна, Simas.

В этом году компании Ольги Кушнаревой-Леоне исполняется 20 лет. Этот интерьер — еще одна яркая история. Но можно ли назвать его модным? Отвечая на этот вопрос, Ольга признается, что во время работы над этим пространством ни разу не звучали слова «модный», «востребованный» — только фразы «подходящее нам», «отвечающее нашему вкусу», «удобное для жизни», «как мы любим». «Всё, что в нем собрано, нравится заказчикам и соответствует их пониманию прекрасного, — подытоживает архитектор. — И это лучше, чем модно — «попасть в настроение» заказчиков на 100%».

Лучше, чем модно: интерьер для семьи с тремя детьми

Романтичные обои с ручной росписью в виде ниспадающих веток и потолочный светильник Fabbian в виде облаков создают атмосферу нежности в спальне дочери. Кровать, Charles.Cameron.

Лучше, чем модно: интерьер для семьи с тремя детьми

Фрагмент еще одной спальни, принадлежащей девочке-подростку. Так было задумано, что нейтральный оттенок стен будет идеальным фоном для предметов искусства. «Заказчики приобретали их, пока велись строительные работы, и никто не предполагал, как удачно в итоге будут расставлены арт-акценты, — объясняет архитектор. — Это стало сюрпризом». Полка, Yaratam.

Лучше, чем модно: интерьер для семьи с тремя детьми

Один из детских санузлов. Тумба, Simas.

Лучше, чем модно: интерьер для семьи с тремя детьми

Планировка.

Добавить комментарий

Ваш адрес email не будет опубликован. Обязательные поля помечены *