Дизайнер Алена Клюева создала комфортное и стильное пространство для взрослой пары, вырастивших детей и решивших пожить в свое удовольствие.
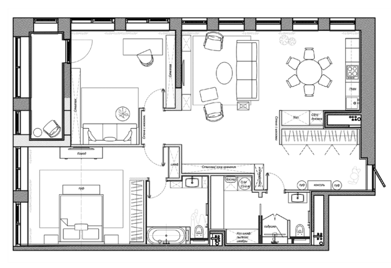
Площадь: 120 кв. м
Владельцы квартиры — взрослая семейная пара — мечтали о спокойном классическом интерьере с современными элементами, где теплые оттенки, натуральные материалы и разнообразные фактуры гармонично оттеняют детали из латуни и яркие акценты.

Автор проекта дизайнер Алена Клюева.
«Хозяева образованные, очень увлеченные люди, любят театр, выставки, много читают и путешествуют, — рассказывает автор проекта Алена Клюева. — Супруга занимается творчеством, пишет картины. Поэтому особенно важным для нее было наличие кабинета с большим количеством стеллажей и большим рабочим столом с видом на Москву. Эту квартиру в ЖК «Садовые кварталы» заказчики приобрели, чтобы пожить для себя — дети уже выросли и живут отдельно».

Гостиная. Диван, кресла, журнальные столики, Rooma Design. Текстиль (шторы, подушки), ателье А.Талалаевой. Ковер, kover.ru. Паркетная плитка, Finex. Декор, Woonstores.
На площади 120 квадратных метров дизайнер создала полноценное и комфортное пространство для жизни двух человек. Здесь есть большая спальня с зонами для хранения вещей, ванная комната, кабинет со множеством стеллажей для книг, небольшой санузел с постирочной и просторная гостиная-кухня-столовая.

Зона ТВ. Кресла, журнальные столики, Rooma Design. Стены окрашены краской Majestic, компания «Обои №1». На полках стеллажей — абстрактные работы Ланы Стальной.
Несмотря на то, что дети живут отдельно, они часто бывают у родителей, и Алене нужно было учесть этот важный нюанс. Решением стало единое общественное пространство. «Объединение кухни-столовой и гостиной стало для заказчиков оптимальным решением, поскольку оно позволяет проводить максимум времени вместе с детьми. Закончив семейный ужин, можно переместиться в зону гостиной и там продолжить общение и отдых. При этом есть приватная зона спальни и ванной комнаты, где хозяева могут уединиться», — комментирует решение Алена.

Предпочтение дизайнер отдала вертикальному техническому свету от компании «Центрсвет» — трековые светильники позволяют создавать акценты в том или ином помещении, выделяют детали или освещают большое пространство, как, например, в гостиной. «Это освещение обеспечивает, в первую очередь, функциональность и комфорт и имеет несколько сценариев управления умным домом. Но ни один мой проект не обходится без декоративного освещения, так, для столовой я выбрала каскадную люстру Cloyd из рельефного стекла», — замечает Алена Клюева.
Для создания спокойного классического интерьера, в основе которого — элегантная, но лаконичная база, автор использовала светлую палитру, натуральные материалы, классические элементы в деталях мебели и отделке. Для контраста разбавила все яркими цветовыми акцентами, добавила современный декор из стекла и металла, а также современные системы освещения, которые сохранили при этом ощущение уюта и домашнего тепла.

Зона кухни-столовой. Обеденный стол, фабрика дизайнерской мебели «ТОК». Стулья, Lavsit. Кухня изготовлена на заказ по эскизам автора проекта. На фартуке — керамогранит Gemstone Ocean от La Fabbrica Ava. Cтолешница — кварцевый агломерат Avant. Люстра, Cloyd. Смеситель, мойка, Omoikiri.

Вид за гостиную-столовую. Картина «Багатель», Леша Непетрович. Электроустановочное оборудование, Jung. Краска для стен, Majestic. Напольное покрытие, Finex. Шторы, ателье А.Талалаевой. Гипсовые карнизы выполнены на заказ.
«Стены, окрашенные шелковисто-матовой краской нейтрального оттенка, выступают универсальным фоном для красочных акцентов, — поясняет замысел Алена Клюева. — На полу в жилых комнатах уложена паркетная плитка, в которую заказчица влюбилась с первого взгляда. На стенах и на полу в санузлах — крупноформатный керамогранит, прочный и неприхотливый в уходе, со вставками из яркой декоративной плитки ручной работы. Плитка в форме чешуи в лазурно-изумрудных оттенках была давней мечтой заказчицы, которую мы воплотили в жизнь. В дальнейшем сине-изумрудная гамма нашла отражение и в других помещениях — в виде мебели, светильников, декора и текстильных изделий».

Прихожая. Шкафы, зеркальное панно — индивидуальное изготовление. Консоль, пуфы, Rooma Design. На полу — керамогранит Italon. Люстра, бра, Cloyd.

Фрагмент гостиной. Система хранения — индивидуальное изготовление. Кресло, диван, журнальный столик, Rooma Design. Ковер, kover.ru.
Еще один выразительный декоративный элемент в интерьере — элегантные шкафы с филенчатыми фасадами, отделанными шпоном дуба и окрашенными в светлый тон. От отдельной гардеробной владельцы отказались и в качестве альтернативы дизайнер предложила использовать шкафы. Причем решила не скрывать их, а целенаправленно выделить, эффектно показать системы хранения в основных помещениях: гостиной, спальне, кабинете и прихожей.

Спальня. Кровать, банкетка, прикроватные тумбы, Rooma Design. За изголовьем кровати — обои ручной работы Fresq. Ковер, kover.ru. Шторы, покрывало, подушки, ателье А.Талалаевой. Плед, Ateliertati. Люстра, настольные лампы, Gramercy Home.

Системы хранения в спальне представлены встроенными шкафами с фасадами из шпона дуба, изготовленными на заказ по эскизам автора проекта. Обои ручной работы, Fresq. Кровать, банкетка, прикроватная тумба, Rooma Design. Настольные лампы, Gramercy Home.
Мягкую мебель заказали в компании Rooma Design. Стильные кресла Olsen c закругленной спинкой вместе с круглыми журнальными столиками привнесли в интерьер гостиной легкость и плавность, разбавили прямые линии дивана и систем хранения. В качестве обивок на кровать и банкетку выбрали качественные ткани итальянского производства. А красивые ручки на комоде и прикроватных тумбочках из латуни в сочетании с оргстеклом придали законченности и оригинальности не только самим предметам, но и помещению спальни.

Украшением спальни выступает картина «Hera», работа художницы Ольги Рикун. Шторы, ателье А.Талалаевой. Плед, Ateliertati. Люстра, Gramercy Home.

Ванная комната. На стенах и на полу — керамогранит Italon. В качестве акцента использована плитка ручного изготовления в виде рыбьей чешуи от Penta. Тумба под раковину выполнена на заказ. Смесители и аксессуары, Bohème. Бра Hinkley, Gramercy Home.
Завершающий штрих — текстиль, который подобран для каждой комнаты индивидуально. На окнах в спальне — портьеры нейтрального оттенка, а акцент сделан на декоративных подушках, в поддержку которым выступают сине-изумрудный кант на банкетке и настольные лампы от Gramercy Home с основанием из рельефного стекла изумрудного цвета. Для гостиной дизайнер нашла шторы из легкой полупрозрачной ткани с тонким кантиком небесного цвета, которые не только подчеркивают количество и высоту окон, но и масштаб всего пространства. В кабинете — фактурная ткань теплого оттенка, выражающая деловой характер пространства и гармонично вписавшаяся в общую концепцию интерьера.

В кабинете главный акцент сделан на удобном и большом рабочем месте — с ящиками для хранения, с хорошим освещением и видом на Москву. Системы хранения разработаны с учетом пожеланий заказчицы и выполнены на заказ. Диван, кресло, Lavsit. Рабочий стол, Dantone Home. Шторы, подушки, ателье А.Талалаевой.

Планировка.